Maison des Avocats
The Maison de l’Ordre des Avocats (MOdA), the headquarters of the Paris Bar Association, is a key component of the new Cité Judiciaire in Paris’s 17th arrondissement. Designed to be symbolically transparent, the building's activity is clearly visible through its glass façade, reinforcing the ideals of justice. Positioned adjacent to the much larger Paris Courthouse (Palais de Justice), the MOdA stands as an independent yet complementary entity. The building’s sophisticated structural design accommodates the challenges of being situated atop a metro station while also contributing to new public urban spaces that invigorate the surrounding neighborhood.

Located within the Clichy-Batignolles development zone, the Cité Judiciaire is bordered by major roads, rail lines, and green spaces. At its heart are two defining elements: the new Palais de Justice—which houses judicial institutions including the Paris Bar Association—and the Martin Luther King Park, a pedestrian-friendly green space that fosters urban interaction. The MOdA’s main façade faces the central plaza, a carefully landscaped space that enhances the civic environment. This integration creates a fluid connection between law, nature, and public life, reinforcing the MOdA’s role as a focal point for legal professionals and the broader community.





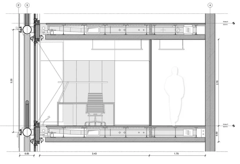
Three principles guided the building’s design: transparency, contextual harmony, and functionality. The transparent façade reveals the internal workings of the MOdA, with staircases, meeting rooms, and the library visible from the outside, embodying the openness of justice. The structure’s form further expresses this ethos, with a sloping glass plane that reflects the shape of the auditorium behind it. The alignment of the rooftop with the first level of the law courts reinforces the relationship between the two institutions while maintaining the MOdA’s distinct identity.






Three principles guided the building’s design: transparency, contextual harmony, and functionality. The transparent façade reveals the internal workings of the MOdA, with staircases, meeting rooms, and the library visible from the outside, embodying the openness of justice. The structure’s form further expresses this ethos, with a sloping glass plane that reflects the shape of the auditorium behind it. The alignment of the rooftop with the first level of the law courts reinforces the relationship between the two institutions while maintaining the MOdA’s distinct identity., normal
Project Details
Status
Client
Ordre des Avocats de Paris + Sogelym-Dixence
Design
Renzo Piano Building Workshop, architects
Design Team
B. Plattner, P. Colonna (partner and associate in charge), S.Cimino, C.Guézet with S.Giorgio-Marrano, C.Maxwell-Mahon, J.Moolhuijzen (partner); A.Bagatella, D.Tsagkaropoulos (CGI); O.Aubert, C.Colson, Y.Kyrkos (models)
Consultants
AIA Ingénierie (structure, MEP, sustainability, civil engineering); RFR (façade); Franck Franjou (lighting); Meta (acoustics); Labeyrie & Associés (A/V systems); NAMIXIS (fire prevention); Origoni & Steiner (graphics); SLETEC (cost consultant)

