Lingotto Factory Conversion
Turin’s Lingotto building was once one of Fiat’s major production facilities, and remains one of the modern architecture’s most emblematic industrial structures.
Its design began in 1915 by engineer Matté Trucco, who drew his inspiration from North American industrial architecture and employed the same methods Hennebique used for the construction of the reinforced concrete structures at the Ford factories.
The building is located in the Nizza Millefonti district, nestled between Via Nizza (from number 230 to 294) and a branch of the Turin railway link.

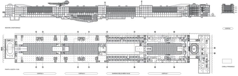
With a volume of one million cubic metres, a length of 500 metres and a height of 5 storeys, the Lingotto building was the first exemplar of modular reinforced concrete construction based on the repetition of three constituent elements: columns, beams and floors.
The workshops were made up of two long longitudinal elements of over five hundred metres in length, used for manufacturing the automobiles, which were joined by five multi-level traverse elements dedicated to the facilities for the personnel. Between 1924 and 1926, two spiral ramps were added at the ends of the long elements.
This provided the automobiles on the ground floor with direct access to the test track, which was located on the building’s roof. The track was comprised of two straight tracts of over four hundred metres in length, which were connected by two parabolic curves that could be travelled at 90 km/h.
The factory was closed in 1982. In 1984, Fiat S.p.A. announced an idea competition and, in 1985, commissioned the Renzo Piano Building Workshop to convert the building from a factory into a multi-purpose centre.
The project had two objectives: to revive the factory by transforming it into a multipurpose centre and to maintain its architectural identity.





The Lingotto building was the first project in which RPBW systematically addressed the theme of urban space.
Through a lengthy restructuring process, the factory was divided into various functions: commercial spaces, dwellings and hotels, with precedence being given to cultural use. While the structure’s external aspect remained unaltered, its interior was drastically modified in order to meet these new requirements.
The conversion process was carried out in three consecutive phases, from 1991 to 2003: each completed area was rendered operational without awaiting the finalization of the entire project. In this manner, the exhibition centre was inaugurated in 1992, followed by a conference centre and an auditorium in 1994, a hotel in 1995, a service centre, several offices and an area devoted entirely to commercial spaces in 2002, and another hotel in 2003.
In 1997, Fiat group’s management headquarters returned to the office block.
The headquarters of the Polytechnic, which offered a degree in automotive engineering, was inaugurated in 2002, as was the Picture Gallery.
The worksite remained open for a total of 16 years.





Some of the complex’s architectural elements include:
The “Bubble”: a completely transparent meeting room on the Lingotto building’s roof, above the test track. It offers an area of 150 square metres, a diameter of 14 metres and a height of 8 metres.
The Gianni Agnelli Auditorium, seating up to 2,000 people. One of the priorities was to ensure complete sound insulation: located beneath one of the factory’s four courtyards, the new structure has been integrated into the existing structure and encased by concrete beams, each of which is isolated by a series of rubber cushions.
The structure’s acoustic variability is achieved thanks to its mobile ceiling elements, which are comprised of wood panels.
The Giovanni and Marella Agnelli Picture Gallery, extending vertically over six floors and occupying a total area of approximately 2,800 square metres. The structure begins with the first floor arcades, where the ticket counter is located. The subsequent floors house the offices and teaching centre. The test track level and that just below it contain a space for temporary exhibitions, while the uppermost level houses the permanent collection. While the first five levels have been derived from the interior of the north tower, the sixth level is a foreign element in terms of both materials and structure.
The “jewellery box” that houses the permanent collection of the Giovanni and Marella Agnelli Picture Gallery is a 450 square metre steel structure, located on the same level as the Bubble.
The area receives lighting from above: the outer surface of the roof is transparent and let in the natural light. Beneath it, a system of mobile aluminium slats are used to adjust the lighting in order to ensure that the works are not exposed to direct sunlight. A protective layer made from a special synthetic material completes the roof internally.
Above the treasure chest, protruding on all four sides, is a 1,000 square metre canopy made up of four layers of profiled steel and 1,600 glass plates. The canopy is secured by steel posts, which keep it suspended about a metre above the gallery.
The Picture Gallery was inaugurated on 20 September 2002, thus concluding the Lingotto building’s transformation process.




Project Details
Status
Design
Renzo Piano Building Workshop, architects
Competition, 1983
Client: Fiat S.p.A.
Design team: S.Ishida (associate), C.Di Bartolo, O.Di Blasi, M.Carroll, F.Doria,
G.Fascioli, E.Frigerio, R.Gaggero, D.Hart, P.Terbuchte, R.V.Truffelli
Design Development and Construction phase, 1991-2003
Clients: Lingotto S.p.A. + Pathé + Palazzo Grassi
Design team: M.Carroll, M.Cucinella, S.Ishida, B.Plattner, A. Belvedere, M.Salerno, S.Scarabicchi, R.V.Truffelli, M.van der Staay, M.Varratta, P.Vincent (partners, partners and architects in charge),
A.Belvedere, M.Cattaneo, D.Piano, M.Pimmel
with P.Ackermann, A.Alborghetti, E.Baglietto (partner), L.Berellini, A.Calafati, A.Carisetto, G.Cohen, F.Colle, P.Costa, S.De Leo, A.De Luca, D.Dorell, S.Durr, F.Florena, K.Fraser, A.Giovannoni, C.Hays, G.Hernandez, C.Herrin, W.Kestel, P.Maggiora, D.Magnano, M.Mariani, K.A.Naderi, T.Nguyên, T.O’Sullivan, M.Parravicini, A. Piancastelli, M.Rossato Piano, A.Sacchi, P.Sanso, A.Stadlmayer, A.H.Temenides, K.Van Casteren, N.Van Oosten, H.Yamaguchi
and S. Arecco, F. Bartolomeo, M. Busk-Petersen, N. Camerada, M. Carletti, I. Cuppone, R. Croce Bermondi, B.Lenz, L.Micucci, M. Nouvion, P. Pedrini, M. Piano; I. Corte, D. Guerrisi, G. Langasco, L. Siracusa (CAD Operators); D.Cavagna, O.Aubert, C.Colson, P.Furnemont, Y.Kyrkos (models)
Consultants: Ove Arup & Partners, AI Engineering, Fiat Engineering (structure and services), Manens Intertecnica (services/movie theater), Prodim+Teksystem (services/dental school); Arup Acoustics, Müller BBM, Peutz & Associés (acoustics); PI Greco Engineering (fire prevention); Davis Langdon Everest, Fiat Engineering, GEC Ingénierie (cost control); Emmer Pfenninger Partner (façade engineering/car engineering school); RFR (roof structure/art gallery); Techplan (theater equipment); P.Castiglioni (lighting); P.L.Cerri, ECO S.p.A. (graphic design); F.Santolini, F.Mirenzi (interiors/hotel); CIA (interiors/shopping center); Studio Vitone & Associati, F.Levi/G.Mottino, Studio Rousset (site supervision)